Bavarian Village on the Lake features a variety of layouts tailored to suit any need. If you have questions about our units, please,get in touch!
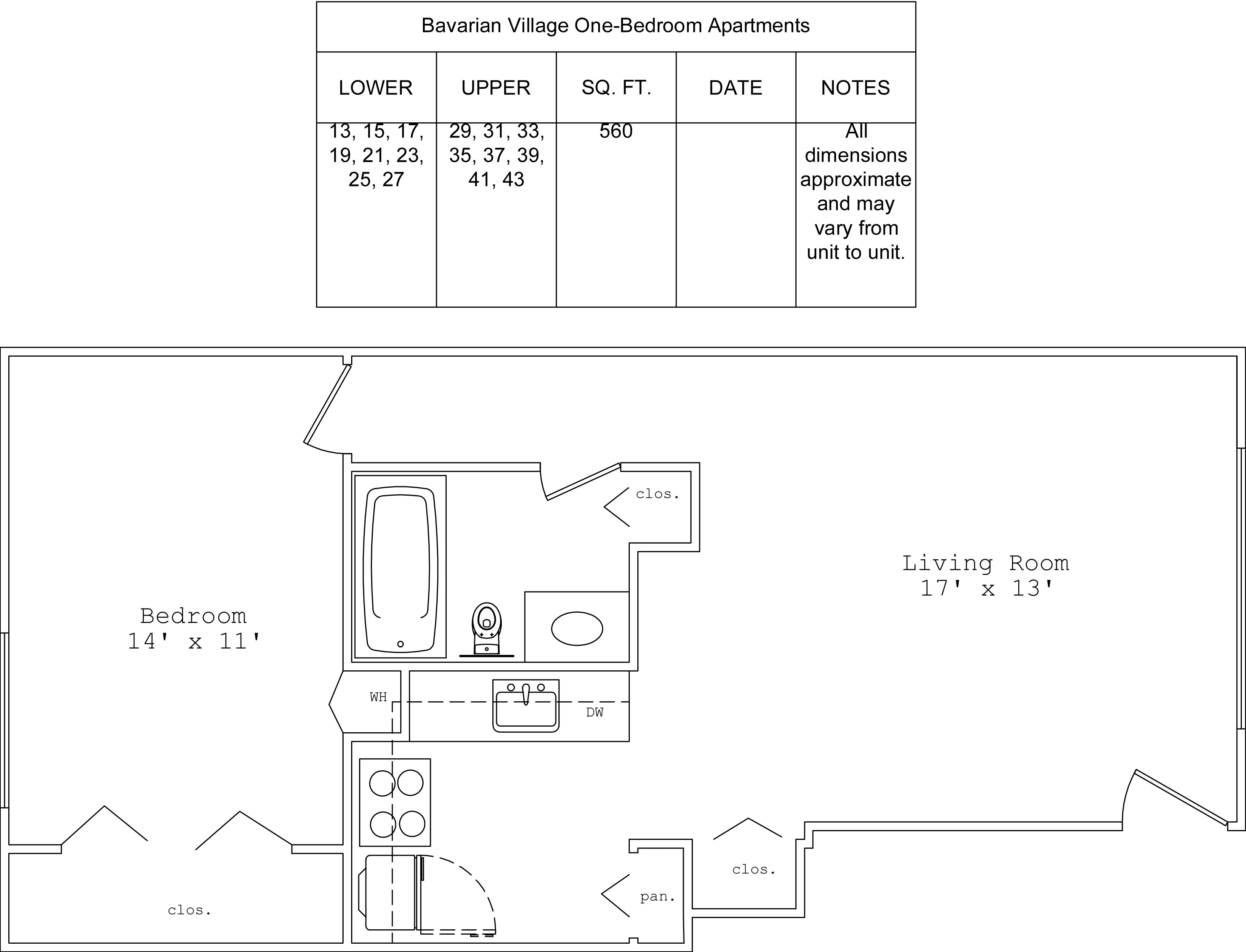
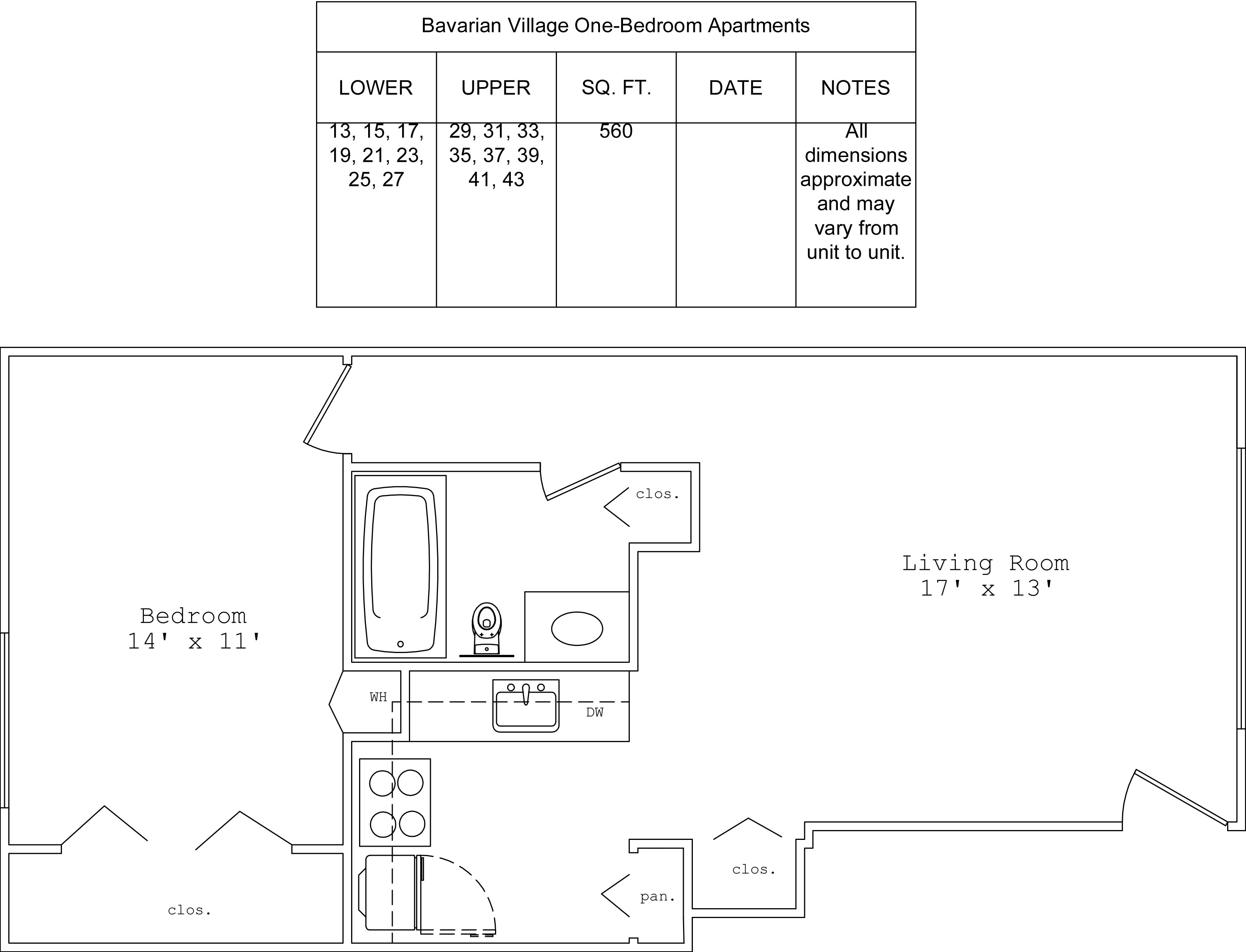
- One Bedroom Apartment
- Large One Bedroom Apartment
- Large One/Two Bedroom Apartment
- Two-Bedroom Apartment
- Two-Bedroom Apartment with Finished Basement
- Two-Bedroom Townhouse with Basement
- One/Two-Bedroom Walkout Townhouse
- One/Two-Bedroom Triangle Walkout Townhouse
- Two/Three-Bedroom Walkout Townhouse
- Three-Bedroom Townhouse with Basement
We have home designs & apartment floor plans to fit your unique taste!







